Проект одноэтажного дома-бани 9,55х6,29 м

0/5 ·
Создан: 5 декабря 2024 г. Обновлён: 26 марта 2026 г.

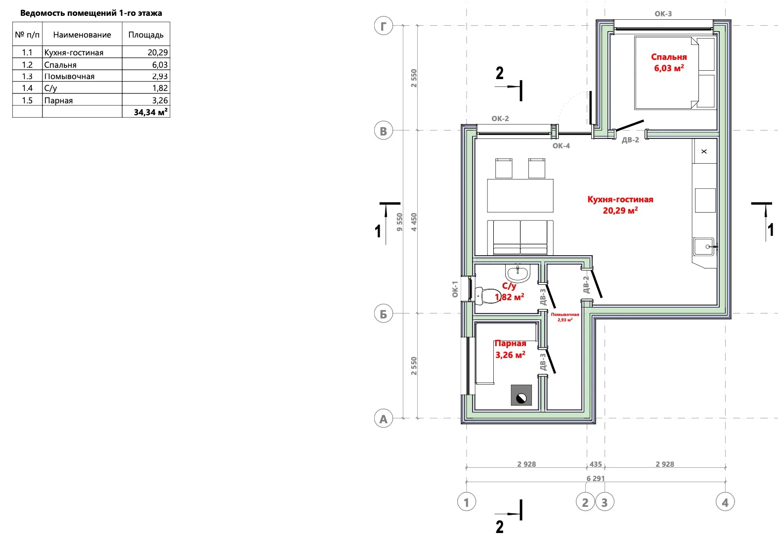
Готовый архитектурно-конструктивный проект каркасного дома-бани площадью 34 м² для самостоятельного строительства. В основе проекта лежит оптимизированная планировка, включающая парную, помывочную, кухню-гостиную, санузел и спальню.

Комплект документации позволяет рассчитать бюджет на закупку материалов — при реализации проекта под ключ стоимость строительства начинается от 25 000 руб./м². В состав входят конструктивный раздел (КР) с узлами и схемами сборки каркаса, эскизный проект (ЭП) и детальный файл распиловки пиломатериалов. Проект учитывает все ключевые параметры теплоизоляции: утепление пола, стен и кровли составляет 200 мм.

Другие материалы автора

0 · 0 отзывов

Отзывов пока нет. Будьте первым!

Ещё интересные курсы

SMM-марафон Можно купить
284 ₽ 3 900 ₽ −93%

SMM-марафон

Remeslo Project
Uneno - Kids Clothing & Toys Store WooCommerce Theme Можно купить
260 ₽ 1 650 ₽ −84%

Uneno - Kids Clothing & Toys Store WooCommerce Theme

MadrasThemes
Лимфодренажные техники Можно купить
80 ₽ 2 050 ₽ −96%
5.0

Лимфодренажные техники

osteoprakt
Интуитивное программирование мужчин Можно купить
180 ₽ 1 000 ₽ −82%

Интуитивное программирование мужчин

Леонид Каюм
И
Можно купить
152 ₽ 870 ₽ −83%

Интерактивный минибук Grammar + Songs. Части 1 и 2

Марина Тойбар
Александр Меншиков: талантливый политик, искусный манипулятор и казнокрад Можно купить
440 ₽ 550 ₽ −20%

Александр Меншиков: талантливый политик, искусный манипулятор и казнокрад

Никита Брусиловский
Воркшоп Threads Можно купить
298 ₽ 3 990 ₽ −93%

Воркшоп Threads

kirill.leeks
Путешествие по Индии. Лекция 3. Раджастан: земля раджей, крепостей и бескрайних песков Можно купить
380 ₽ 500 ₽ −24%

Путешествие по Индии. Лекция 3. Раджастан: земля раджей, крепостей и бескрайних песков

Мария Терентьева