Проект каркасной бани 9,6х8 метров

0/5 ·
Создан: 11 октября 2017 г. Обновлён: 26 марта 2026 г.

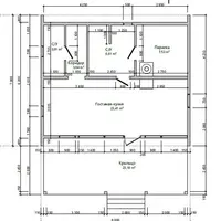
Получите готовую техническую документацию для самостоятельного возведения каркасной бани размером 9,6 на 8 метров. Проект разработан командой «Строй и Живи» и «СВ-Фундамент» и включает детальные параметры силового каркаса, необходимые для строительства надежного объекта.

В проект включена информация о толщине несущих конструкций стен (150 мм), стропильной системы (150 мм) и перекрытий (200 мм). Планировка постройки предусматривает гостиную-зону отдыха площадью 23,41 м², парилку 7,5 м², санузел с помывочной и просторное крыльцо/веранду площадью 23,10 м².

Другие материалы школы

Готовый проект каркасного одноэтажного дома 8,0x9,0 метров Можно купить
738 ₽ 7 000 ₽ −89%
5.0

Готовый проект каркасного одноэтажного дома 8,0x9,0 метров

Строй и Живи
0 · 0 отзывов

Отзывов пока нет. Будьте первым!

Ещё интересные курсы

К
Можно купить
80 ₽ 2 990 ₽ −97%
5.0

Как сэкономить миллион рублей на постройке дома

С. Лапко, В. Зенкин
П
Можно купить
420 ₽ 3 000 ₽ −86%

Проект каркасного хозблока 3х4 и бытовки 2х4

Каркасный дом, бытовка для строительства своими руками Можно купить
300 ₽ 6 500 ₽ −95%
5.0

Каркасный дом, бытовка для строительства своими руками

Типовой проект каркасного дома в стиле барнхаус: openbarn_65 Можно купить
1 080 ₽ 5 000 ₽ −78%

Типовой проект каркасного дома в стиле барнхаус: openbarn_65

Woodcastor
Проект каркасного дома 6х6 24 (36) м2 для строительства своими руками Предзаказ
1 707 ₽ 8 300 ₽ −79%

Проект каркасного дома 6х6 24 (36) м2 для строительства своими руками

karkasdom.info