Проект бани из бревна

0/5 ·
Создан: 24 апреля 2025 г. Обновлён: 26 марта 2026 г.

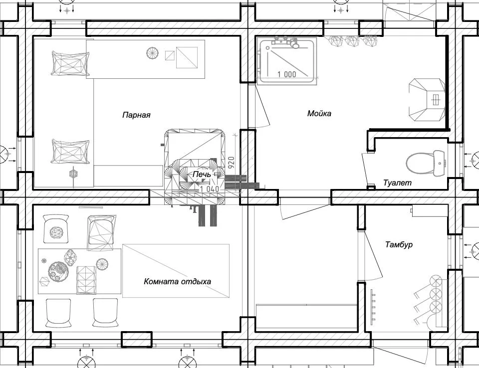
Воплотите в жизнь концепцию «Живой бани», сочетающей принципы традиционного русского зодчества и современные инженерные решения для долговечности конструкции. В основе проекта лежит создание комфортной среды с эффективным паровым эффектом и грамотной вентиляцией. Вы получите детальные рекомендации по устройству плавающих деревянных полов, организации системы отвода воды, возведению стен из бревна и монтажу стропильной системы. Особое внимание уделено интеграции специализированных банных печей («Жива», «Лежебока», «Неваляшка») и теплоизоляции цокольной части, что гарантирует защиту здания от перепадов влажности и температур.

Другие материалы автора

Образное парение в русской бане. Коллекция основных движений банщика Можно купить
100 ₽ 3 150 ₽ −97%

Образное парение в русской бане. Коллекция основных движений банщика

Иван Бояринцев
О
Можно купить
132 ₽ 3 630 ₽ −96%
5.0

Основы строительства Живой Бани

Иван Бояринцев
О
Можно купить
126 ₽ 3 500 ₽ −96%
4.0

Основы строительства Живой Бани

Иван Бояринцев
0 · 0 отзывов

Отзывов пока нет. Будьте первым!

Ещё интересные курсы

Как построить экодом Можно купить
136 ₽ 5 200 ₽ −97%
5.0

Как построить экодом

П
Можно купить
434 ₽ 15 000 ₽ −97%
4.3

Проектирование пермакультурного дизайна

ПИЦ Райар
Строительство дома и благоустройство участка Можно купить
138 ₽ 598 ₽ −77%
5.0

Строительство дома и благоустройство участка

Проект каркасного дома 6х7 84м2 КД-12 Можно купить
164 ₽ 5 500 ₽ −97%
5.0

Проект каркасного дома 6х7 84м2 КД-12

Авторский справочник интерьерных красок Можно купить
356 ₽ 5 900 ₽ −94%
5.0

Авторский справочник интерьерных красок

Анна Эрман
Перекраска пластиковых оконных рам под темное и светлое дерево Можно купить
158 ₽ 3 000 ₽ −95%

Перекраска пластиковых оконных рам под темное и светлое дерево

Елена Юрьева